.
En Francos Rodríguez nº 42 se conserva la fachada de lo que fue una atractiva vaquería.
En el patio de este edificio había establos con vacas. Los vecinos iban a comprar leche recién ordeñada con sus lecheras de metal y sus botellas de vidrio.
.
.
En Madrid había centenares de vaquerías donde se vendía la leche fresca. Fue en 1969 cuando se prohibió la venta de leche a granel, una fecha que marcó el fin de estos establecimientos.
Aunque ya no había vacas en ellas, todavía se siguió vendiendo leche sin envasar en algunas lecherías, traída de establos situados en las afueras de la ciudad. Esta práctica cesó en 1986, cuando se prohibió vender leche sin envasar ni etiquetar.
.
.
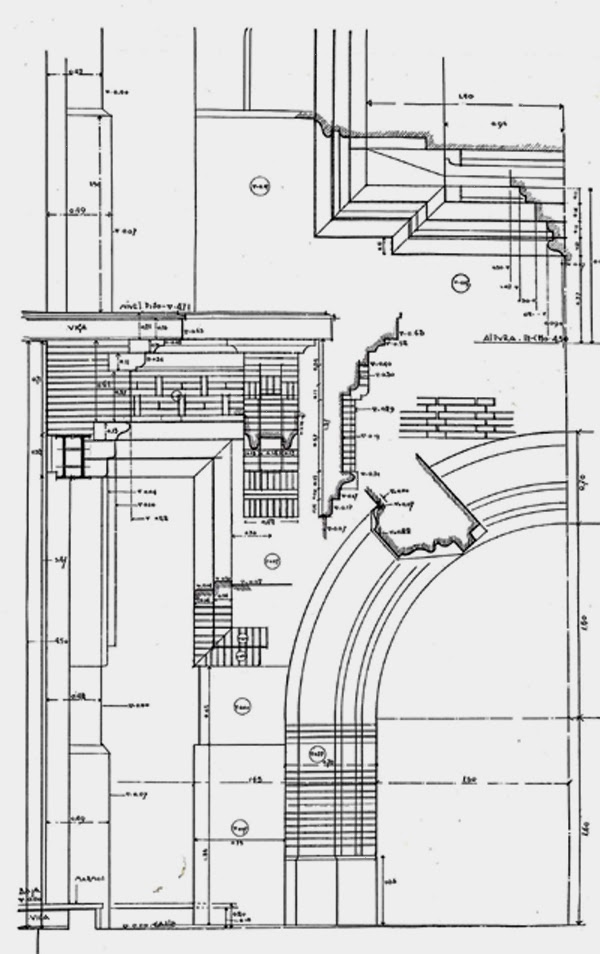
La vaquería de Francos Rodríguez se construyó en 1923, a cargo del arquitecto Gustavo Fernández Valbuena.
.
.
Sus elementos decorativos, en la línea del art decó, embellecieron esta fachada donde se combinan magistralmente el ladrillo, la forja y la cerámica.
Los relieves cerámicos proceden, al parecer, de la fábrica de la Moncloa.
.
.
En la actualidad, el edificio está destinado a viviendas.
.
.
Gracias a José Luis Alonso, arquitecto, que me ha enviado estos planos y fotos en B/N.
.







Nací en el numero 44 de la calle Francos Rodriguez y de mocita mi madre me mandaba a comprar la leche…ahí al lado. Pero antes que yo, la compraba ella con la "lechera", por supuesto.
Años más tarde, cuando empezaron a estar de moda las bolsas de leche…ahí si que recuerdo. Iban envasadas en bolsas de plástico. Y en la calle Villaamil, estaban las vacas, es decir, la vaquearía en toda regla. Puede parecer un asco, pero me encantaba el olor. Me asomaba entre las rejas con mis amigas y nos reíamos mucho, cuando las veíamos menear el rabo cuando hacían su "caca". Espero no haber sido maleducada, pero es lo que yo viví esos años. Allá por los 61 o así. Muchas gracias por todas las fotos.
No pasa nada. Sigo pensando lo mismo, y sigo siendo quien soy.